旦可韵 DCCRUDO
万物皆可织 ● 连锁店
万物皆可织 ● 连锁店
服务项目:品牌全案设计、品牌策略与诊断、VI设计、SI连锁店设计
项目名称/ 旦可韵 DCCRUDO
服务客户:宁波旦可韵服饰有限公司
项目地址/ 浙江宁波
主要材质/ 艺术涂料、木饰面、水磨石、金属
完成时间/ 2022.07
KNITTING FOR ALL
专注时尚针织产品高端定制30年
-
世间万物,源于自然,赋予天然。旦可韵在草原、戈壁、山野中与自然共鸣,甄选优质羊绒、羊毛、丝、麻、棉等天然原料,本着敬畏之心再造,将万物之灵诉诸于织物之中。万物皆可织,织以造万物。
空间色彩
-
色彩上,我们选取了低饱和度的白色与不同深浅的咖色作为空间主色调,二者相互映衬调和,既减少了通体白色的冷静感,也避免了大面积咖色的沉闷感,打造羊毛织线带来的温暖感,整体空间呈现出温暖、优雅的状态。
空间材质
-
沉稳、色调柔和的木材是自然的赠予,天然纯粹也不失温度,是空间质感呈现的关键。同时,利用金属来添加细节,精致却也不抢眼,静静地待在空间里。地面采用白色水磨石,星星点点的装饰,清新而雅丽。
连锁专卖店形象设计
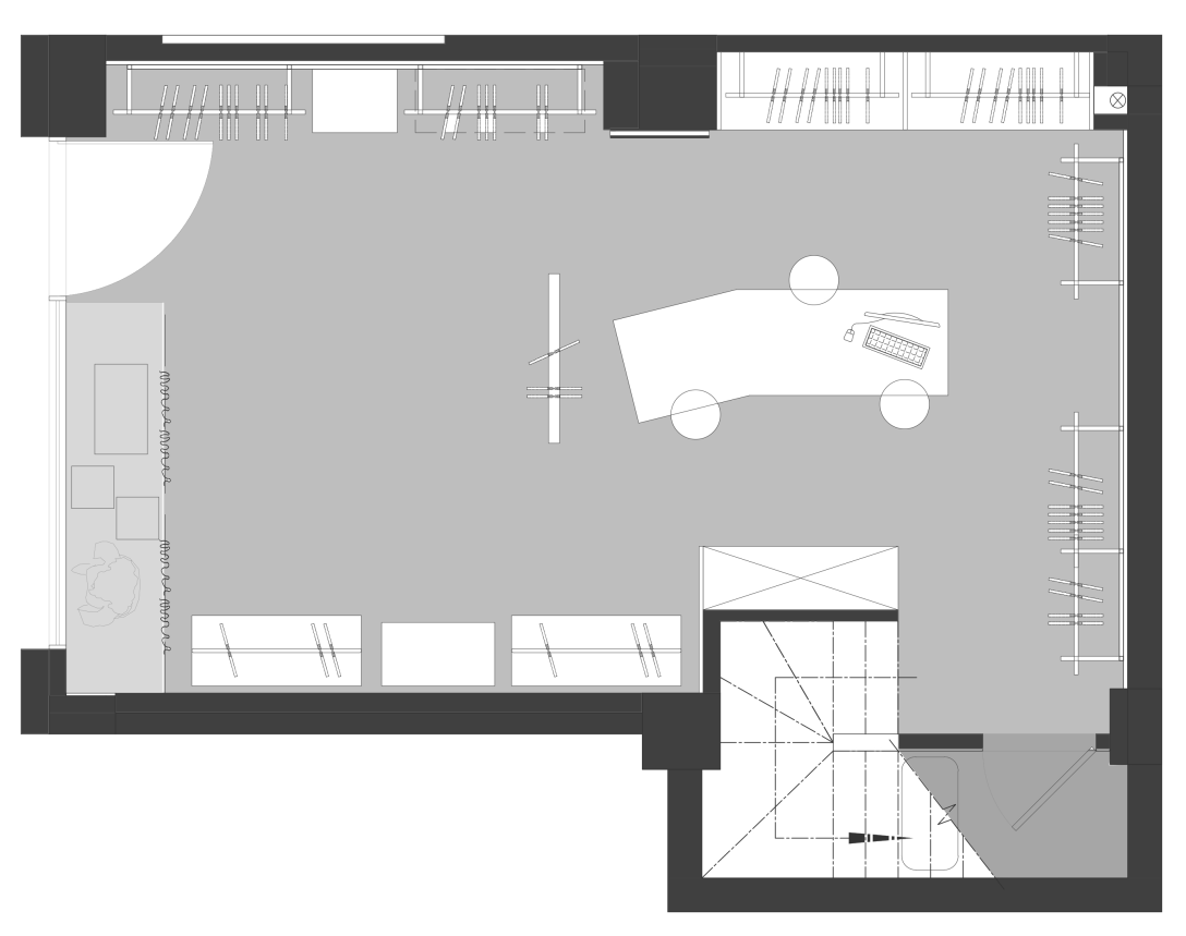
庄市店
门头区域
-
门头区域的设计保持着与品牌一致的格调感,采用大面积玻璃打通室内外空间壁垒,让来往的路人更直观地感受店内的服饰以及布置,吸引入店。同时,利用橱窗营造时尚大片氛围感,给予顾客场景化联想,感受旦可韵的服饰魅力。
店内区域
-
店内区域的设计没有强烈的视觉冲击力,拥有优雅的气质,以平缓温暖的氛围静静萦绕在空间内。木材以不同的形式链接着每一个角落,温润的质感以呼应羊毛织物“柔、软、暖、糯”的特点。同时,尝试通过布、金属与木质的组合来增加变化,从而创造丰富的空间层次,来表达经典与现代特性的时尚。
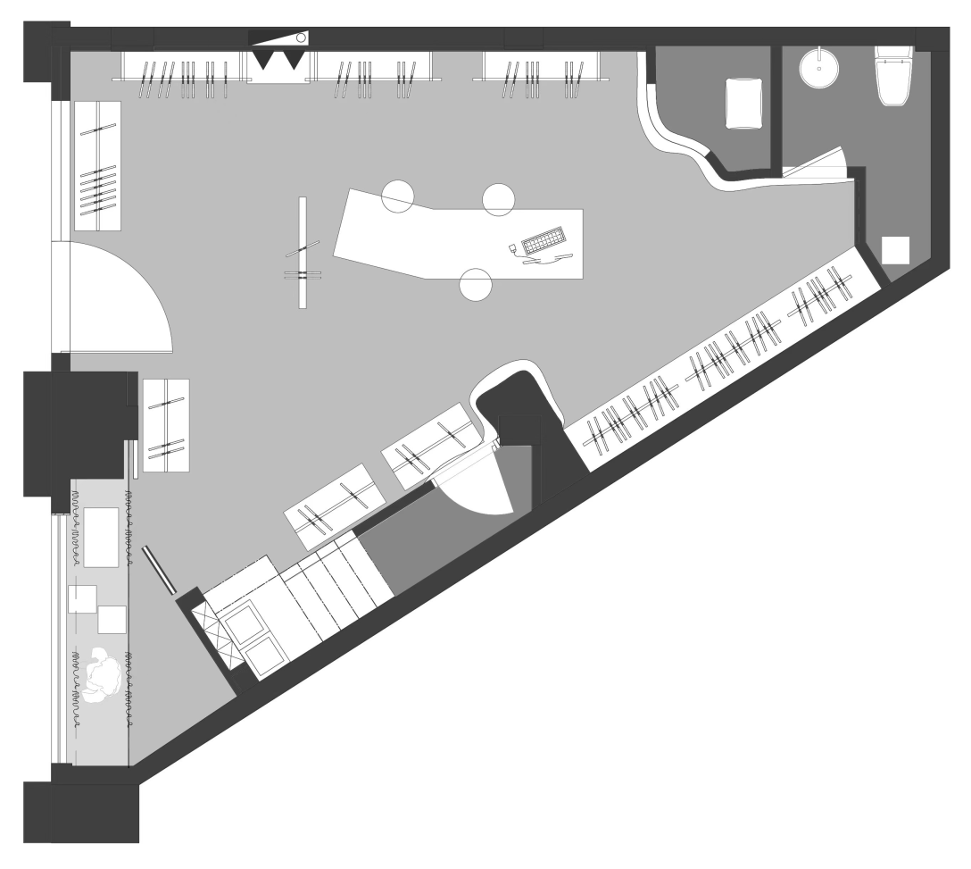
镇海店
门头区域
-
门头的设计是简约的,从细节处凸显品牌的格调感。利用临街的地理位置优势,通过户外海报墙以及橱窗传达品牌的调性吸引来往的路人。一盏壁灯柔和的灯光与金属门牌的配合,盈盈光泽,精致而优雅。
店内区域
-
柔与雅的气质在空间里萦绕,温暖的棕色调空间,以一种柔和的方式传递空间的舒适感。利用规整的布局打开空间,并采用左右不对称却对应的陈设设计,打造变化的层次感。同时,保持着留白的形式,给予空间呼吸感
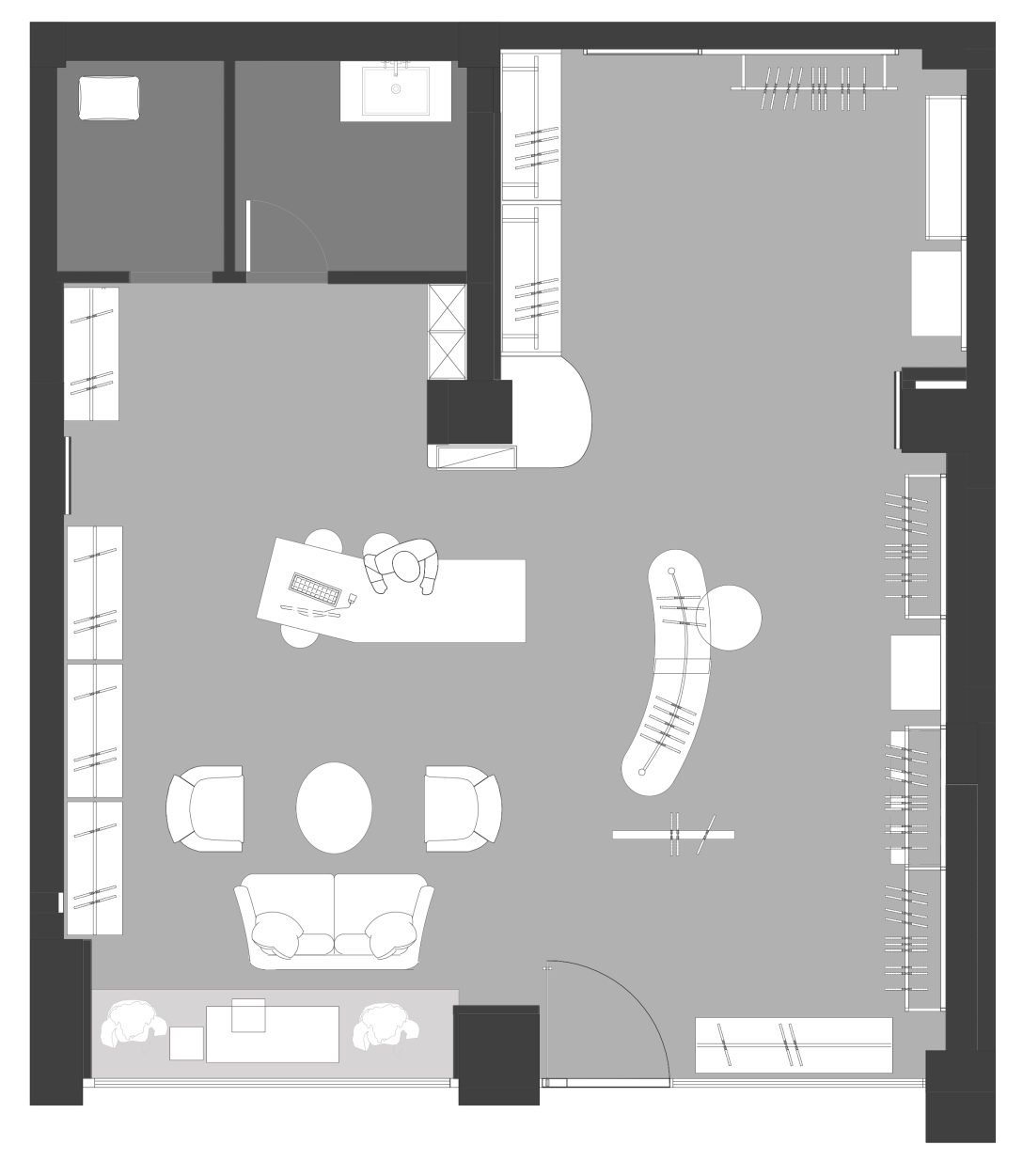
鼓楼店
门头区域
-
我们将外墙打开,让内部空间与户外空间形成一体,模糊边界,让旦可韵更好的融入这个街区,并向外展示服饰的魅力,有意的引导人们进入到我们营造的场景中。
店内区域
-
在连续的空间内,我们有意识地利用墙面分隔空间,增加服饰的陈列空间,优雅的弧面,朴素的材质,一切都安排的恰如其分。前台也与整体风格保持一致,温润的木质桌面,低调而稳重。