方蕊生物&弥尚整店

善丨干丨学丨和

善丨干丨学丨和

服务项目:品牌定位、品牌VI、空间设计&落地

项目名称:办公与展示空间
服务客户:方蕊生物科技有限公司
https://www.dvz.com/store
项目地址:广东广州汇金国际金融中心
主要材质: 玻璃砖、木饰面、艺术涂料
项目面积: 1100㎡
完成时间:2022.9

公司与品牌背景:
方蕊生物科技有限公司,坐落于广州市天河区汇金国际金融中心,是集品牌授权、教育培训、产品研发、美肌塑体服务为一体的专业科技型美学管理品牌,主打健康有效,注重健康美管理,坚持安全才是健康美的基础。品牌拥有一整套定制的高端科技仪器,结合高品质产品,定位、定层、定量地解决当前肌肤/身材问题,实现顾客从内而外的健康美。

方蕊生物科技有限公司用心打造专业科技型美学管理中心,提供整店输出、专业教学、运营管理、引流拓客、销售培训、项目开发等品牌化一站式创业平台,为创业者保驾护航。

店铺区域
-
店铺设计希望传达专业、安全、时尚的感觉,曲线与光感的渐晕结合,仿佛预知着新生的蜕变。整体空间采用柔和的中性色调,来突出各类材质的特性,感受丰富的空间层次。干净的线条和温暖的机理,无不展现着简约美学。

洽谈间以舒适为主,偏暖调的设计,柔而优雅,让交流也变得愉快起来。治疗间则偏冷调,搭配简洁利索的线条感,更具备专业感。同时辅以木质,注入温和气息,呈现温暖且具有治愈力的医疗空间。



品牌
方蕊&弥尚
持有
方蕊生物科技有限公司
时间
2022年
地点
中国广州
项目
品牌全案策划&设计&落地
标签
#美妆 #空间设计#医美 #私护 #美容院设计#抗衰

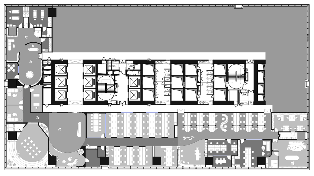
方蕊生物办公空间系统全局设计


空间色彩
-
在色彩上,大多以白色和灰色为主,白色是严谨的,在多变的层次结构中呈现出时尚艺术的一面,灰色则是沉静的代表,中和了纯白空间的冷冽感,搭配木纹咖色,构建出亲切自然且舒适的空间。

空间材质
-
空间本身的材质语言非常简单,以微水泥和艺术漆作为主基调,细腻柔和的质感,并带有沉稳的一面,为空间带来优雅艺术的气息。在此基础上加入天然石材、木质以及绿植点缀,呈现舒适生活化的工作环境。

前厅&接待区
-
前台区域通过曲直有序的设计建立了入口的形态结构,搭配圆弧灯环,使得空间充满了灵动感。看似没有过多造型,却暗藏心机,利用质感材质打造一个简约又不失格调的空间。入口的植物造景柔和了空间冷肃之感,以清新的自然气息成为了吸睛一笔。

会议室区域
-
阶梯会议室是颇具艺术感的空间,以简单的灰度营造优雅质感,利用大面积玻璃引入光线,让光与影在这里书写时间的流逝,静谧而沉稳。半弧形踏步造型与顶面相呼应,给人包容一切的力量,适合来一场思想上的碰撞。一侧墙面还设计了书架供员工阅读拓展,知识的力量,就如空间给人的感觉,安静而有力。小会议则保持着严谨规矩的风格,用木质调节点缀,减弱会议室的严肃感。

洽谈室
-
与会议室不同,洽谈室更有一种轻松闲适的氛围感。强调以简为美的理念,用简洁的线条构建空间,每一处细节都是品味与态度的直接体现。居家般的陈设布置,良好的采光,并加以绿植点缀,呈现出通透简约的高品质空间。

公共办公区与茶水间
-
行政、电商、售后部办公区保持着应有的秩序感,解除封闭式的紧张,以更自由的状态打造开放式办公环境。去繁化简,以各色陈设,如电子壁炉、植株、挂画等装点空间,于不经意间感受空间的用心。

行政部、电商部的过道尽头是休闲茶水区,采用内嵌式橱柜设计,让空间更具一体性。同时利用圆弧曲线和层次变化的设计,打造自由的半开放式公共活动区。策划部延续简约舒适的设计灵感,拱形和建筑元素被重新创造,艺术化的构建让办公也充满了惊喜感。

每个独立的办公室在保持整体空间基础上,关注人与人、人与空间的关系,尽可能满足不同部门的功能需求设计,或足够的储物空间,或放松的交谈空间。

董事长办公室与休息室

-

在董事长办公室的设计上,不仅满足空间功能与质感,更多的是营造雅致与轻松并存的工作氛围,让办公也变成一种享受。简单永恒的黑白灰以及奶油色是空间的主旋律,摒弃传统的严肃商务风,选取品质设计款家具作为装点,精美简约的气质扑面而来。

一侧安排了休息室,温暖纯粹的设计,搭配简约的几何造型,给人带来舒适氛围感,可以在工作疲倦之时,享受静谧的休憩时光。


推荐案例
Franic
ORIOR
XIYUAN
Aimee零零痘
官方微信公众号
微信扫一扫关注
“机构”